Palazzo Comunale di Tolentino

Lavori di riparazione danni e miglioramento sismico del palazzo comunale

I lavori di riparazione dei danni e miglioramento sismico del Palazzo Comunale di Tolentino hanno l’obiettivo di restituire piena funzionalità e sicurezza a uno degli edifici simbolo della città, gravemente danneggiato dagli eventi sismici del 2016.

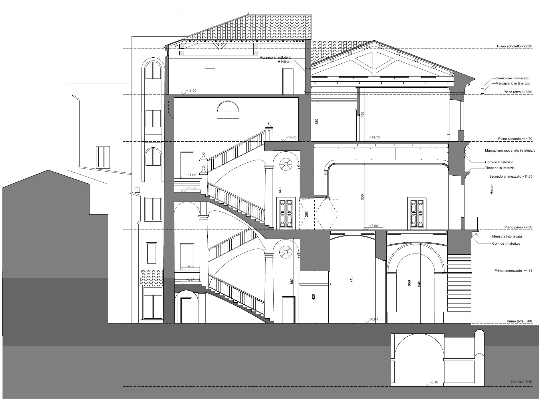
Il Palazzo Comunale, situato nella centrale Piazza della Libertà, ha origini medievali ma deve il suo aspetto attuale ai rifacimenti avvenuti tra il XVIII e il XIX secolo. L’edificio, caratterizzato dalla torre civica con l’orologio e dal portico con arcate, è da sempre sede del governo cittadino e testimone della vita civile e politica di Tolentino. Al suo interno custodisce ambienti di valore storico e artistico, come sale decorate e antichi stemmi comunali.

L’intervento prevede il consolidamento strutturale delle murature, il rinforzo dei solai e il restauro degli elementi architettonici di pregio, nel rispetto dell’identità storica e monumentale del palazzo. Le opere mirano non solo alla messa in sicurezza sismica, ma anche alla riqualificazione funzionale dell’edificio, affinché torni a essere la sede operativa delle istituzioni e un punto di riferimento per la comunità cittadina.

Scheda Progetto
Anno / Year:
2025
Luogo / Location:
Tolentino (MC)
Stazione Appaltante:
Provincia di Macerata
Offerta Tecnica:
Coordinarore / Coordinator:
Arch. Claudia Compagno
Collaboratori / Collaborators:
Arch. Vincenzo D’Aurea
Arch. Martina Ruggieri
Arch. Francesco Nasso
Arch. Eleonora Bisbocci
Dott. Rony Bouez
clicca l'immagine per chiuderla

3CH Studio di Architettura - Arch. Claudia Compagno © 2025

P.IVA 01604000677