Ex Carcere femminile di Perugia

Restauro e rifunzionalizzazione dell’Ex Carcere femminile di Perugia

Il compendio ex carcerario di Perugia è situato nella zona sud del centro storico, in posizione intermedia tra la città alta e la restante parte urbana.
Per dimensioni, localizzazione e qualità architettonica degli spazi aperti e costruiti, il complesso rappresenta un’occasione strategica per la rigenerazione urbana, in particolare nell’ambito del progetto per la Cittadella Giudiziaria, destinata a ospitare funzioni pubbliche di rilevanza sovralocale.
Il complesso si articola in tre comparti, tra cui l’edificio nord del carcere femminile, oggetto specifico del presente intervento. Per la sua posizione intermedia tra piazza Partigiani e la città alta, l’edificio si configura come elemento di connessione urbana, in grado di attivare dinamiche di ricucitura fisica e funzionale del tessuto circostante, oggi frammentato.
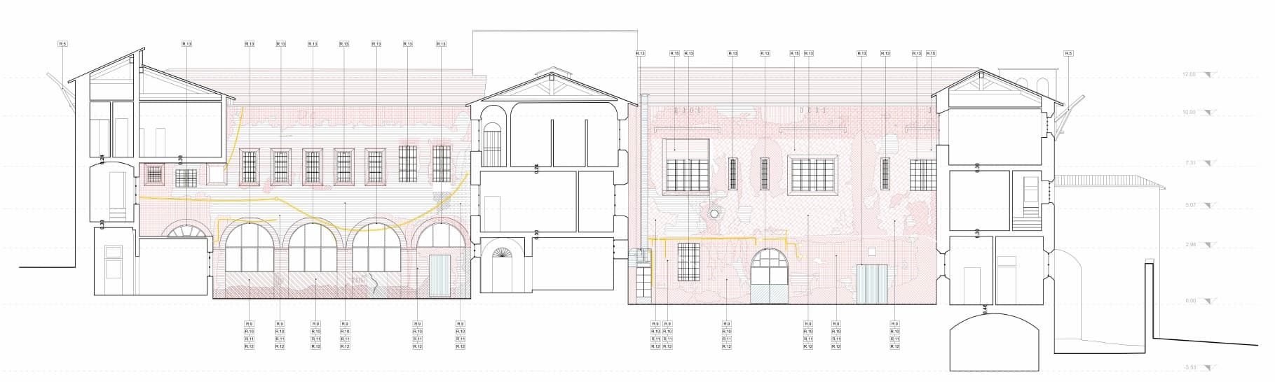
L’intervento ha previsto operazioni di riqualificazione edilizia e adeguamento funzionale, volte a restituire l’edificio a una nuova fruibilità pubblica. Sono stati eseguiti interventi di consolidamento strutturale, risanamento conservativo, riordino distributivo e adeguamento impiantistico, nel rispetto delle caratteristiche storiche del manufatto.
Particolare attenzione è stata rivolta alla compatibilità tra nuove funzioni e preesistenze, alla sostenibilità degli interventi e all’accessibilità degli spazi, con l’obiettivo di trasformare il comparto in un polo attivo per la rigenerazione del contesto urbano e social.

Scheda Progetto
Anno / Year:
2024
Luogo / Location:
Perugia
Stazione Appaltante:
Agenzia del Demanio
Offerta Tecnica:
3CHProject s.r.l
Coordinarore / Coordinator:
Arch. Claudia Compagno
Collaboratori / Collaborators:
Arch. Eleonora Bisbocci
Arch. Vincenzo D’Aurea
Dott.ssa Tugce Topal
clicca l'immagine per chiuderla

3CH Studio di Architettura - Arch. Claudia Compagno © 2025

P.IVA 01604000677